智慧办公
智慧办公
AIOT智慧办公解决方案,您的企业正面临数据管理的信息孤岛
查看详情
IOT物联环境
访客预约
门禁通行
会议预约
智能工位
信息发布
空间储物管理
智慧物联协作平台
IOT物联环境
构建空间物联,实现办公空间内空调、照明、窗帘等多种环境设备一键式场景联动及集中管理
访客预约
让访客管理变得安全、便捷、效率高
门禁通行
避免拥堵,消除潜在隐患,进而打造一个更加安全和便捷的新时代智慧办公
会议预约
数字化管理 优质会议服务 资源高效利用
智能工位
规划、革新您的工作空间!
信息发布
替代传统纸张张贴公告,统一、高效、整体管控发布公司信息、图片、视频等内容
空间储物管理
安全、便捷、定制化的智慧存储解决方案
智慧物联协作平台
统一门户入口、状态实时反馈、空间管理、设备控制、系统运维、数据统计
智能家居
多媒体音视频
案例
关于
关于我们
新闻
加入我们
联系
En
English
简体中文
南方天控
首页
业务
智慧办公
业务
智能家居
业务
多媒体音视频
南方天控
案例
南方天控
关于
南方天控
联系
Copyright © 2017 - 2023 深圳市南方天控智能科技有限公司 版权所有
粤ICP备2024303149号-1
网站:尼高
企业
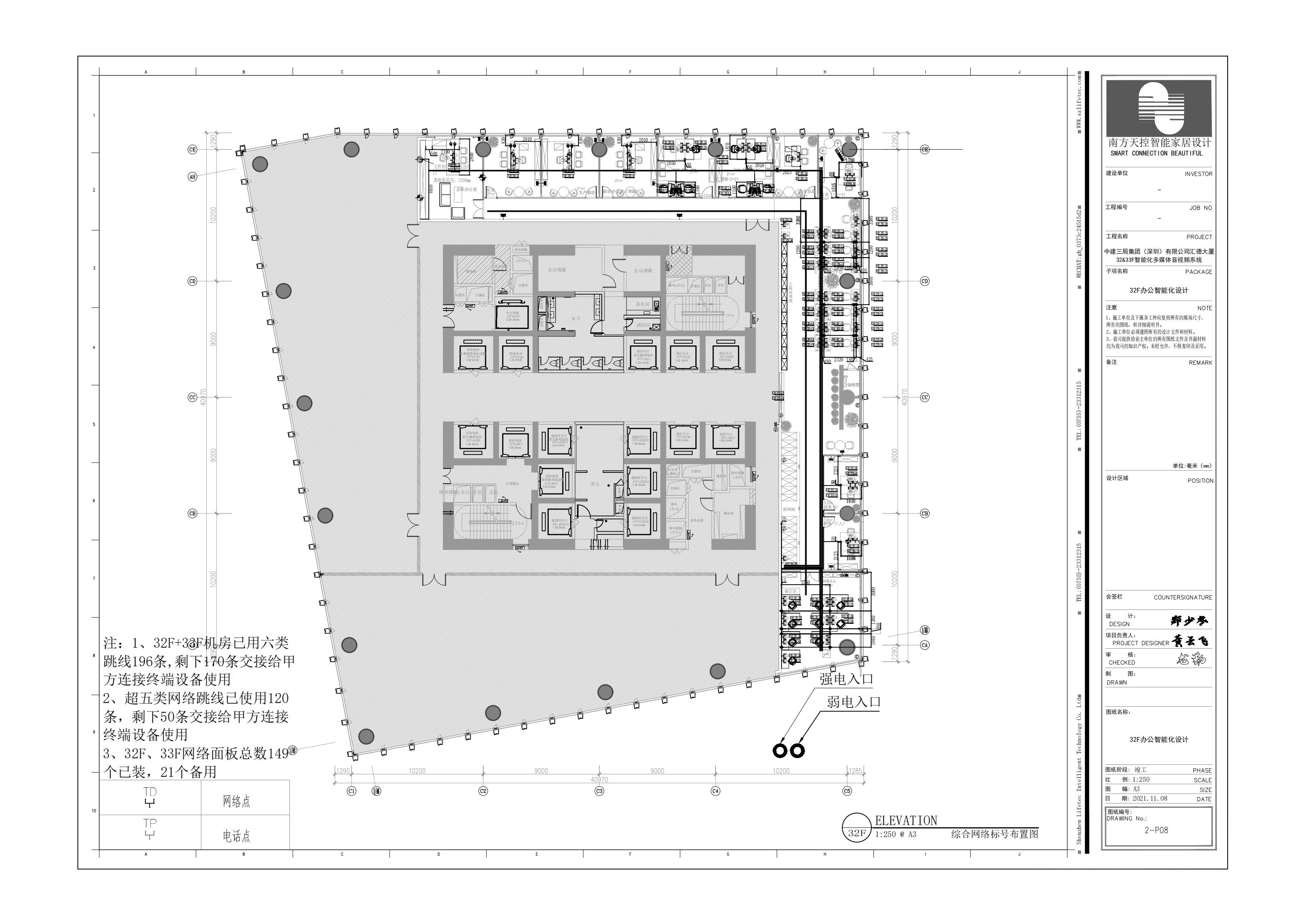
中建三局集团(深圳)有限公司
您现在的位置:
首页
-
案例
-
企业
-
案例详细
客户
中建三局集团(深圳)有限公司
返回案例列表
行业
建筑
坐标
深圳市龙华区汇德大厦32-33F
面积
约2000㎡
性质
办公
系统
智能中控,智能照明(KNX),智能面板,智慧环境(空调、新风),电动窗帘,无纸化会议系统、计算机网络、无线WIFI覆盖,门禁、监控,机房,多媒体互动系统;
品牌
美国SAVANT,英国INSPRID、ABB、BOSE、方图、华为等
时间
2021年
项目平面图
案例场景
更多项目
住宅
碧桂园 • 宁波慈溪云顶
会所
上海威迈斯12F会所
会所
川王府(蜀滋香)深圳总店
会所
南山创意大厦会所
会所
华侨城D+美术馆
查看更多的案例
与我们取得联系
点击“发送”即表示您确认您已阅读并理解我们的隐私政策。南方天控不出售个人信息。
发送
Contact Us